
Верстат для правки зварних таврових конструкцій JZJ-800
Виробник: ZHOUXIANG COMPLETE SET OF WELDING EQUIPMENT CO.,
LTD, Китай
Механізований стан моделі JZJ-800 є невід'ємною частиною лінії з виготовлення таврових сталевих конструкцій
Призначення:
правка таврових конструкцій, виготовлених зварним способом - правка грибовидності балок після автоматичного та напівавтоматичного зварювання
* Така деформація виникає у процесі зварювання сталевих пластин внаслідок розігрівання та охолодження
Технічні характеристики:
Швидкість вирівнювання 18 м/хв
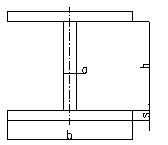
Технічні характеристики таврових сталевих конструкцій для правки їх грибовидності:

Умовні позначення:
a - товщина ребра
b - ширина полки (b = 200-800)
s - товщина полки (s40)
h- висота ребра
Якщо матеріал характеризується Q235-А, то відношення ширини і товщини повинно відповідати даним:
|
s |
≤ 25 |
<25≤30 |
< 30 ≤ 30 |
< 35 ≤ 40 |
| b | 200-800 | 350 - 800 | 500 - 800 | 600 - 800 |
Висота виробу, h:
у нормальних робочих умовах, розмір H-подібної сталевої пластини, яка може бути вирівняна у нефарбованих умовах,
складає 350< h ≤700